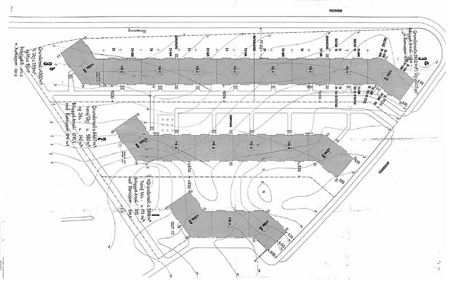
Beskrivelse:
Bebyggelsen består af tre stokke, der alle har karakteristiske knæk i enderne, som indrammer de grønne rum mellem bygningerne, og er karakteristiske for bebyggelsen og dens måde at placere sig på det trekantede grundstykke. Bygningerne er opført med facader i blank gulstensmur med teglhængte blådæmpede saddeltage. Langs facaderne sidder karnapper støbt i jernbeton, der
hænger sammen vertikalt over tre etager, hvor den øverste etage bryder gennem tagfladen. Disse karnapper har en skulpturel effekt og udgør bebyggelsens stærkeste kendetegn og skaber en kobling til Alléhusene længere nede af Jægersborg Allé. Mellem karnapperne er murpartierne udført med skoddebesatte vinduer og indgangspartier, hvor hoveddøren nås via en kort ligeløbstrappe. På gavlene er franske altaner med sidepartier.
Emneord:
Boligbebyggelser | Boliger | Tegl | Andelsboligforeninger | Jernbeton | Modernisme |Se på Google Maps
