Beskrivelse:
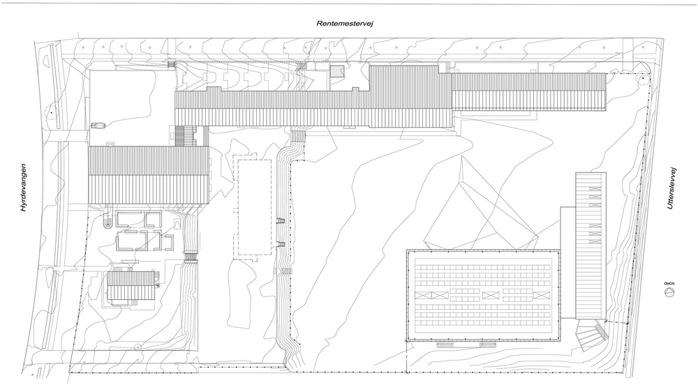
LAARK - Laungaard Arkitekter har stået for det nye projekt, udført fra 2011-2015. Projektet består af en ny idrætshal med en lavere mellembygning, samt transformation af Henning Hansens gamle gymnastiksale fra 1939 til nyt bibliotek, studiesal, 6 nye klasselokaler og ny trappe. Bygningerne er placeret i en broget bymasse i Københavns Nordvestkvarter. Fokus for udformningen af den nye hal, har været at etablere en dialog med den eksisterende skole. Sportshallen er placeret i den sydøstlige ende af grunden og dermed skabes et nyt gårdrum. Den store hal ligger trykket ned i landskabet, så volumenet passer sig ind i sammenhængen. Facaden er opbygget af translucent polycarbonat og strækmetal og har afrundede hjørner. De to lag facademateriale giver et konstant diffust lys i hallen. Mellembygningen huser dansesal og omklædningsrum.
De oprindelige bygninger, opført i røde håndstrøgne tegl, stod klar i 1940 og har også rundende hjørner. De er tegnet af arkitekten Henning Hansen som en komposition af tre let forskudte længer, ud til en stor grøn græsplæne mod syd.
Ombygningen af de gamle gymnastiksale tager udgangspunkt i den eksisterende bygnings strukturelle takt. Facadens oprindelige store fintsprossede vinduesparti, der kaster et fint net af skygger ud over rummet er blevet restaureret og har inspireret til indretningen. Den gamle gymnastiksals søjler danner en takt og giver tyngde til rummene. Gymnastiksalens materialitet videreføres og har virket som inspiration til de nye rum og funktioner, hvor nye formelementer som cirkelslag og geometriske afvigelser skaber en kontrast i det ellers simple rum. Disse former skaber plads til specialfunktioner, blandt andet et aflukket mødelokale i rotunden og en tribune foran gavlvinduet.
Den terrakottarøde betonpavillon på HF-Centrets nye forplads er udformet af kunstneren FOS. Kunstværket danner siddepladser og læ, og den nye plads får skolen til at træde ud i bymiljøet ved Utterslev Torv samtidig med at den samler de forskellige bygninger.
