Skolens ankomstareal set fra højhuset. I de lave bygninger er indrettet lærerboliger.
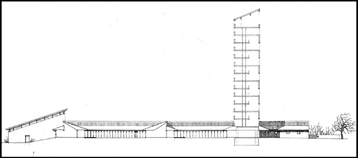
De lave bygninger er opført af murværk i røde sten og med mørkt, imprægneret træværk.
Betonen er ubehandlet i en temmelig grov udførelse. Under loftet de forunderligste tremmekasser i klare farver
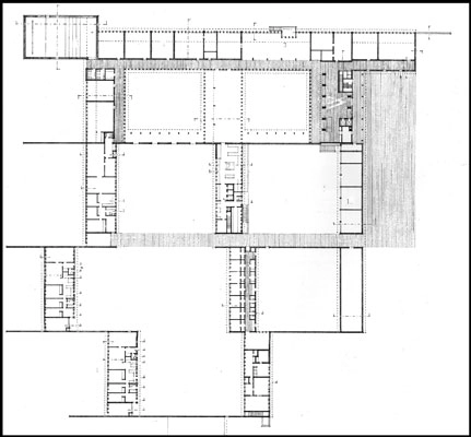
Fra forhallen udgår gange der forbinder administration, opholdsstuer, undervisningsrum og spisesal.
Højhuset med skolens forhal er anbragt i øverste, højre hjørne af bygningsværket.
Beskrivelse:
Højskolens arkitektur udtrykker skolens to funktioner hvor undervisningen er anbragt i en samling én-etages bygninger omkring en gård, mens indkvartering af eleverne klares i højhuset. Højhuset er opført af jernbeton beklædt med bølgeplader af aluminium.
De lave bygninger er opført af murværk i røde sten og med mørkt, impræneret træværk.
Kilde: Arkitektur 1963 Nr. 3, side: 81-89
