Det nordøstlige hjørne af forvaltningshøjhuset med styringscentralen i baggrunden. De petroleumsblå udluftningsrør kendes også fra Rødovre Bibliotek.
Gavldetalje. Gavlene var oprindelig beklædt med norske natursten, som senere er blevet erstattet med indiske sten af samme kvalitet i forbindelse med renovering.
Haveanlæg set fra sydvest med styringscentral. Strømforsyningen i hele Hamburg regionen styres herfra med et topmoderne anlæg.
Foyer set mod syd. Indgang i højre side og receptionsdisk til venstre. I baggrunden til venstre adgang til husets centrale elevatorer.
Siddegruppe med Svanen stole. I baggrunden trappenedgang til mødesal og kantine.
Væggene i foyeren er beklædt med schweizisk pæretræ, som også er anvendt andre steder i huset.
Beskrivelse:
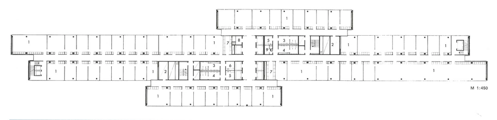
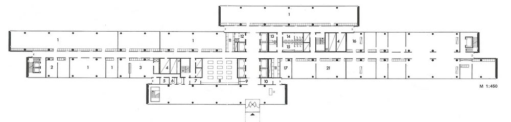
Oprindelig opført som hovedkvarter for Hamburgische Elektricitäts-Werke AG (HEW), som siden er blevet overtaget af det svenske energiselskab Vattenfall. Huset, der med sin stilrene, elegante profil må regnes som et af den sene Jacobsens hovedværker, er opført som fire smalle, forskudte bygningselementer i beton med curtain-wall facader og gavle beklædt med grå natursten. De to yderste bygningselementer er kortere end de to midterste, som til sammen måler 153 meter i længden. Bygningen er 44,5 meter høj og er orienteret med gavlene i nord-syd retning. Nord for forvaltningshøjhuset er opført i direkte forlængelse en lav styringscentral, beklædt med sorte natursten og med en nordvendt glasgavl. Mod øst ligger et delvist nedgravet to-etagers parkeringsanlæg. Mod vest løber en pergola i hele bygningsanlæggets længde samt et haveanlæg, hvor nord-syd orienteringen er gentaget, her er også en mindre parkeringsplads for besøgene. Teknikrum, mødesal og kantine er anbragt i to underjordiske etager i husets centrale del. Huset blev bygget med høj fleksibilitet for øje og også med Arne Jacobsen som ansvarlig for indretningen. Alle senere ændringer er så vidt muligt udført i hans ånd.
Emneord:
Curtain Wall | Domiciler | Modernisme |Se på Google Maps
