Beskrivelse:
Sammen med Arne Jacobsen bidrog Kay Fisker i selskab med mange af verdens førende arkitekter til den internationale INTERBAU udstilling i Vestberlin i 1957. Byen var stadig præget af krigens bombardementer og udstillingen skulle præsentere fremtidens moderne boligarkitektur beliggende i en bydel med luftige grønne områder. I 1995 blev Hansaviertel fredet.
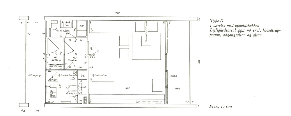
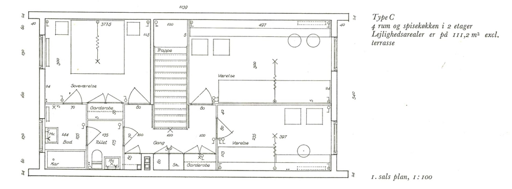
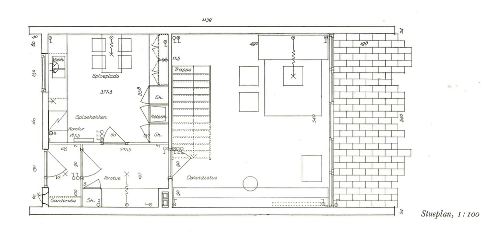
Haus Fisker er en af de mere beskedne bebyggelser med i alt 15 lejligheder. Huset er orienteret med gavlene nord-syd med fire etager mod nord og tre etager mod syd. Facaderne fremstår i en mørkegrå farve med hvide gavle og en række fremhævede bånd, der inddeler huset i syv fag. Umiddelbart ser huset ud, som om det er opført med et betonskelet med pudset murværk i facaderne, men faktisk er det hele huset, der er udført i traditionelt pudset murværk. Adgang til lejlighederne sker via opgangen på østsiden af den høje del. De fire nederste lejligheder i den lave ende har dog alle deres egen indgang.
Emneord:
Udstillinger | Pudsede facader | Modernisme | Grønne områder |Se på Google Maps
