Facaden mod syd er skabt af Studio Olafur Eliasson, og består af mere end 1.000 tolv-sidede moduler af glas og stål, som Olafur Eliasson kalder "quasi-bricks".
Beskrivelse:
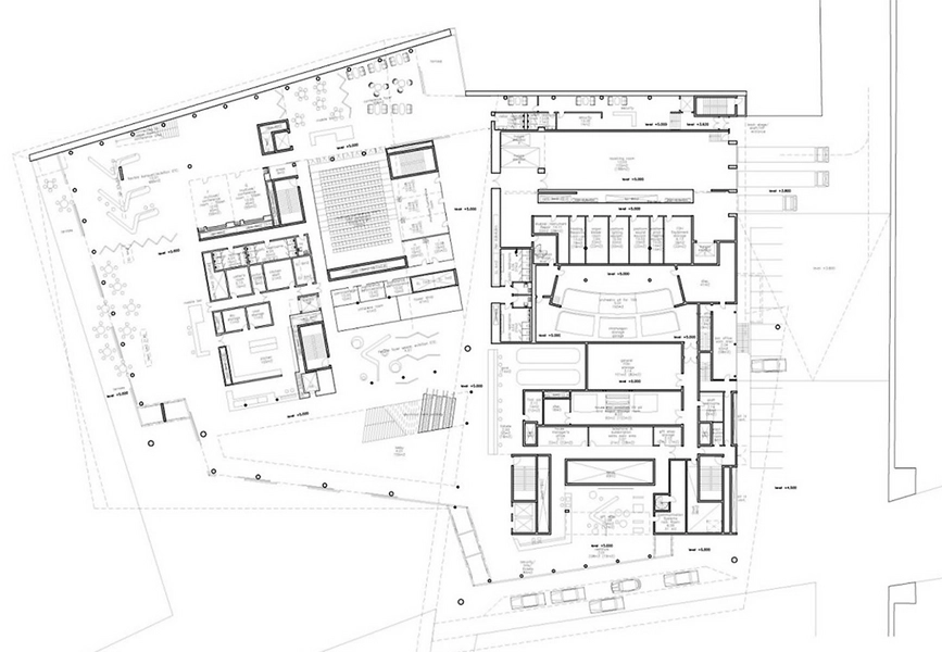
Med sin placering i Reykjavik på grænsen mellem land og hav står koncerthuset som en stor lysende skulptur, der spejler himmelen, havnen og byens pulserende liv. Det 28.000 m2 store koncerthus ligger som en solitær med frit udsyn til bugten og fjeldene omkring Reykjavík. Huset vender sig mod byen, og er indrettet med et spektakulært foyerområde, som åbner sig i hele bygningens højde, med blik mod Reykjavik by. Fire musik- og konferencesale er placeret centralt i bygningen, mens kontorer, administration, øve- og omklædningsrum er placeret på havnesiden. Restauranten på øverste etage er placeret over koncertsalene med udsigt over vandet. Koncert- og konferencecentret indgår i en større masterplan for området omkring Reykjaviks havn, hvor der arbejdes på at bringe by og havn i tættere samspil. Harpa vandt Mies van der Rohe-prisen 2013.
Emneord:
Glas | Glasfacader | Facadeudsmykninger | Koncertbygninger | Kunst | Facadeelementer | Kongrescentre | Facadebeklædninger | Glasbygningssten | Facademønstre | Koncerthuse |Se på Google Maps
