Garagerne set fra nordøst med tårnet til Kaiser-Friedrich-Gedächtniskirche i baggrunden.
Svinget ved garagerne set fra sydøst med Malmö arkitekterne Fritz Jaenecke og Sten Samuelsons bygning i baggrunden.
Beskrivelse:
Sammen med Kay Fisker bidrog Arne Jacobsen i selskab med mange af verdens førende arkitekter til den internationale INTERBAU udstilling i Vestberlin i 1957. Byen var stadig præget af krigens bombardementer og udstillingen skulle præsentere fremtidens moderne boligarkitektur beliggende i en bydel med luftige grønne områder. Hansaviertel blev fredet i 1995.
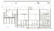
Arne Jacobsens bidrag er fire sammenhængende atriumhuse med flade tage. De tre største huse på 140 kvadratmeter ligger med facaderne ud mod vejen, mens et mindre hus ligger tilbagetrukket bag et garageanlæg, hvor vejen svinger. Facaderne mod vejen, som vender mod nord, er uden vinduer men bærer trods alt nogle af arkitektens karakteristika med de blå hoveddøre, olivengrønne vægpaneler kantet af aluminiumslister og teaktræsriste under taget til udluftning. Hvert hus omslutter et atrum, som har opholdsrummene rettet mod sig. Desuden har husene en indelukket gårdhave.
Emneord:
Udstillinger | Modernisme | Grønne områder |Se på Google Maps
