Geomuseum Faxe, Kulturhuset Kanten
| White Arkitekter • Julie Hilfling • Mette Boye Nielsen • Claudia Munkeboe | 2008Museets 1.plan skyder sig ud mod afgrunden.
Kalkbrudet er det største menneskeskabte hul i Danmark. Der er gravet ca 40 m ned i undergrunden der var et hav for 65 millioner af år siden.
Fotograf: Per Vissing Christensen
Download billede
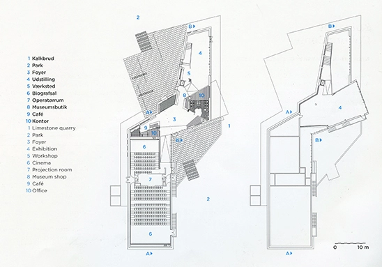
Stueplanets udstilling
Den nordlige fløj rummer kalkbruddets kulturhistorie i stueplanet og fossiler og geologi ovenpå.
Fotograf: Per Vissing Christensen
Download billede
Montrer på 1. sal
Der er en fantastisk flot udsigt over bruddet.
Fotograf: Per Vissing Christensen
Download billede
1. sal
Udstillingen rummer mange fosiller fundet i kalken.
Fotograf: Per Vissing Christensen
Download billede
Vinduerne er monteret i stålrammer
Sydfløjen der rummer biograf set fra sammenskæring.
Fotograf: Per Vissing Christensen
Download billede
Den anden fløj er dobbelthøj.
Kulturhuset Kanten rummer bl.a. en biograf
Fotograf: Per Vissing Christensen
Download billede
Foyer og cafe
Foyeren er det centrale ankomstrum mellem biograffløjen (her til højre i billedet) og museumsdelen.
Fotograf: Per Vissing Christensen
Download billede
Beskrivelse:
Huset er bygget helt ud til kanten af Faxe kalkbrud. Som et hvidpudset betonhus spiller det i sit udtryk videre på geologiske brudflader med sine sammensatte bygningskroppe.
Emneord:
Kulturhuse | Biografer | Museer | Adresse:
Se på Google Maps
Se på Google Maps
