Mod gaden bugter bebyggelsen sig ud og ind - og danner nye byrum. Samtidig bevæger facadeopdelingen sig i vertikale forskydninger mens det skrånende paptag søger at fastlåse bevægelserne.
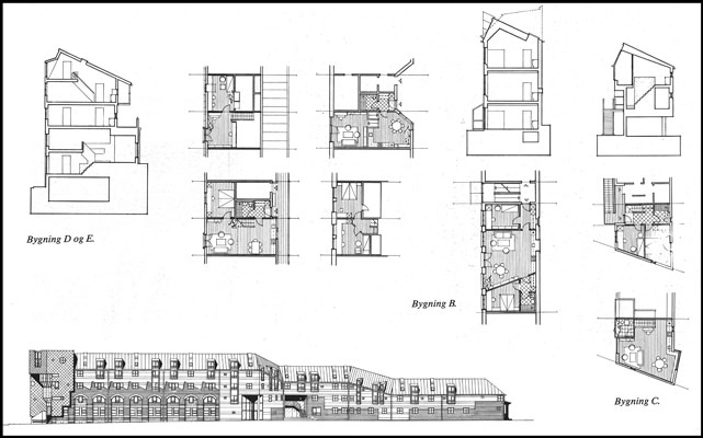
Mod nordvest i bebyggelsens indre gård kulminerer boligbebyggelsen i et veritabelt højhus. Samlet rummer Garvergården 74 lejligheder.
Mod de tilstødende gader varierer boligbebyggelsen fra 2½ til 4½ etage og genanvender i sin struktur den tidligere Hertz skofabrik og en direktørbolig.
Beskrivelse:
Garvergården er en blanding af nyt og gammelt, højt og lavt og flere forskellige byggematerialer, heriblandt eternit, beton og tegl. På grunden lå tidligere et industrianlæg til garvning af huder og dele af det gamle fabriksanlæg er indarbejdet i bebyggelsen.
Mod nord er en større opgang fremhævet ved som en kæmpeportal at understrege bebyggelsens hjørne i højde og drøjde. Mod Jagtvej markerer bebyggelsen sig med en ny boliggavl og en ældre villa ombygget til café. Med disse skalaspring skiller byggeriet sig klart ud fra omgivelserne.
