En overdækning af malet metal med form som en lav og bred kube med åbne sider giver ly for regn.
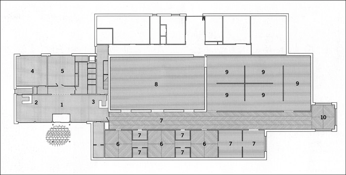
Den store centrale gallerigang, som både er udstillings- og fordelingsareal, binder alle udstillingsrummene sammen
For enden af museet er indrettet et udsigtsrum med vinduer til havet og landskabet. Rummet er tænkt som et sted for ro og reflektion.
Museet er placeret på linje med godsforvalterens hus pegende mod horisonten
Beskrivelse:
Fuglsang Kunstmuseums prisbelønnede museumsbygning er tegnet af den britiske arkitekt Tony Fretton (født 1945) og indviet i 2008. Fretton står bag tegnestuen Tony Fretton Architects i London, som er hædret for at integrere moderne byggerier nænsomt i omgivelserne.
På Fuglsang harmonerer den ny arkitektur også smukt med det omgivende herregårdsmiljø: I form, farve, rytme, proportioner og materialer er bygningen nøje afstemt med stedets historie, traditioner og æstetik.
Bygningens placering fremhæver også områdets beliggenhed og natur, fordi den blandt andet giver plads til åbne udsigter, fx mod Guldborgsund. Dens udstillingssale udgår fra en central korridor og varierer i størrelse og indretning, herunder en stor særudstillingssal velegnet til al slags kunst.
Også indefra rodfæster bygningen sig i det lollandske landskab. For enden af korridoren er der et udsigtsrum, hvor man kan skue over de udstrakte marker mod det fredede naturområde Skejten og til Falster i det fjerne. Rummet er meget populært blandt museets gæster.
Kilde: fuglsangkunstmuseum.dk/udstillinger-og-oplevelser/arkitektur/
