Beskrivelse:
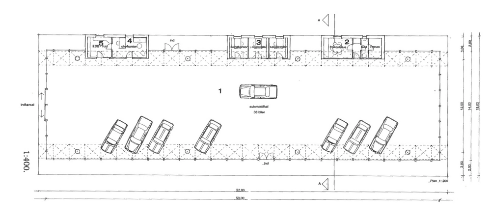
Udstillingshallen til bilforhandleren Ford er et af Hanne Kjærholms sene projekter. Det rene og skarpskårne projekt viser arkitektens interesse for konstruktioner og rene former. Bygningen fremstår som en forfinet funktionel bygning med få velovervejede materialer. Inspirationen fra Japan ses både i den fine tagkonstruktion, vinduespanelerene i facaden, det lyse interiør med udsigt til grønne omgivelser og i landskabsplanlægningen omkring huset.
Emneord:
Udstillinger | Butikker | Konstruktioner | Tagkonstruktioner | Haller | Adresse:
Se på Google Maps
Se på Google Maps
