Beskrivelse:
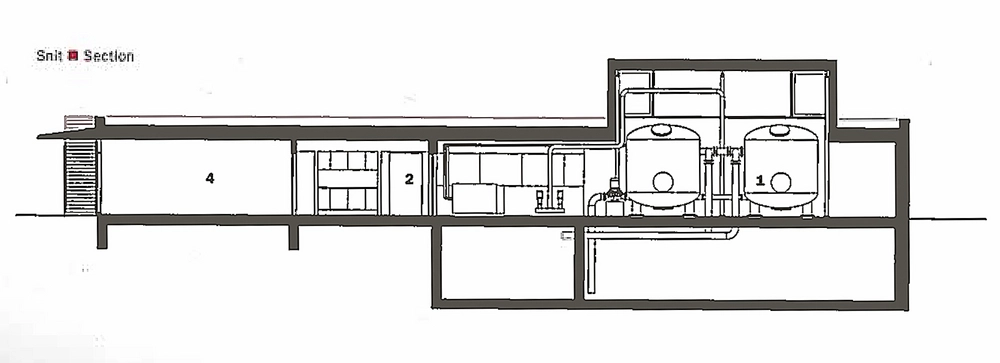
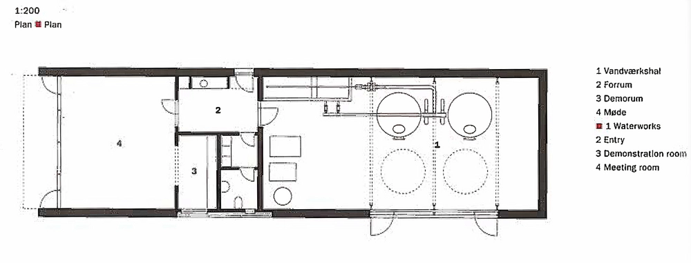
Vandværket er beliggende i parklignende omgivelser i Espevang. Bygningen er komponeret af to hovedelementer: En lav tillukket del i sortmalet træ, som rummer bifunktionerne, samt et højt volumen som huser selve vandværket. Dette har store glaspartier hvorigennem værkets røde kvartsfiltre ses. Tag og indklædning omkring de to store glaspartier fremstår i falset zink.
Emneord:
Zink | Glas | Træ | Træbeklædninger | Tekniske anlæg | Zinkinddækninger | Vandforsyning | Vandværk | Adresse:
Se på Google Maps
Se på Google Maps
Links: Tegnestuens hjemmeside | Arkark's side om projektet |
