Beskrivelse:
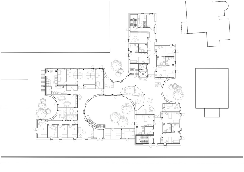
Bygningens komplekse form tager udgangspunkt i villakvarterets småskalige kontekst. Huset vender ud mod en stille villavej og ligger på bagsiden af Diakonissestiftelsens anlæg af høje, røde murstenshuse med stejl tagrejsning og kamgavle. Hospicet rummer 2.200 m2 og huser 16 sengepladser, fordelt i fire mindre enheder i husets fløje. Bygningen er to etager høj, men ud mod gaden flader den sydvestlige længe ned til én etage, med en stor solterrasse på taget. På de tre sider af huset, som vender bort fra vejen skærer halvcirkler sig ind i facaden og danner små gårdrum. Husets centrale nerve er den dobbelthøje foyer med hængende balkon og krumme vinduer mod den centrale runde gård. Facaderne er udført i messinglegeringen tombak, og skinner endnu på billederne. Med tiden vil facaderne blive matte og brunlige. Vinduerne går fra gulv til loft og har jalusier og skodder i ædeltræ på ydersiden. Det er arbejdet med bekostelige materialer i projektet, hvilket også ses i de indre trækarme, hvor den nederste del er udskiftet med corian, for at beskytte mod stød fra sengekanter, når beboere køres ind og ud. MASU Planning har stået for landskabsprojekteringen. Den ovale gård og de halvrunde indskæringer i bygningsvolumenet, med cirkelbelægningerne i flade brosten, danner fine uderum i den grønne have.
Emneord:
Glas | Glasfacader | Buede bygninger | Runde hjørner | Hospicer | Tombak |Se på Google Maps
