Børnebassinet
Blandt de mange idrætsfaciliteter er et svømmebassin for børn.
Fotograf: Per Munkgaard Thorsen
Download billede
Gymnastiksal
Arkitekturens minimalistiske underspilning kommer til sin fulde ret i gymnastiksalen.
Fotograf: Per Munkgaard Thorsen
Download billede
Svømmehal
Det store svømmeanlæg for voksne er præget af bløde kurver og et tiltalende indtag af dagslys.
Fotograf: Per Munkgaard Thorsen
Download billede
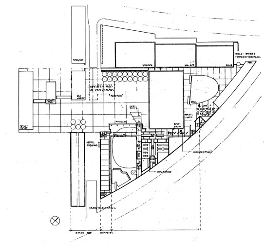
Beskrivelse:
Hovedadgangen fra Tietgensgade er markeret af en høj klatremur.
Kompleksets hovedfacade mod jernbaneterrænet i sydøst krummer som sporanlæggene.
Trods en gennemgående minimalistisk formgivning domineres DGI-byen udadtil af robuste teglfacader, således også hjørnet Tietgensgade/Ingerslevgade.
