Alle husets vinduer er energiruder med lavemissionsbelægning opg krypton-fyldning. I de translucente glaspartier er anvendt en mat folie til lamineringen for at gøre lyset mere diffust. De mindre ruder er til ventilation.
Glashusets bærende idé var at solenergi kunne klare en større del af opvarmningsbehovet - og at variationen mellem transparent og translucent glas ville give beboerne den nødvendige variation og afskærmning mod indblik.
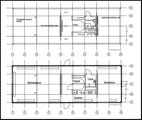
Opholdsstuen ligger i husets vestside og har fuld hushøjde (2 etager). I husets kerne findes trappe, vådrum og køkken, mens værelser er placeret i overetagens østside.
Inde fra huset opleves de transparente ruder som udsigtsgivende mens de transparente virker matterede. Om natten lukkes for indblik med større gardiner.
Beskrivelse:
Forsøgshus med vinduesareal på 216 kvm mens husets areal er på 205 kvm fordelt på to etager. Alle husets fire facader er glaspartier. Efter en start som udstillings- og prøvehus er husets funktion senere overgået til fælleshus for mindre naboboliger.
