Beskrivelse:
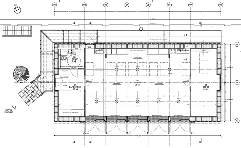
Designmuseum Danmark er beliggende i det tidligere Kgl. Frederiks hospital i Bredgade. I forlængelse af museets administrationsbygning ligger Designværkstedet. Bygningen er på 132 m2 og udformet med inspiration fra en staldbygning, som tidligere lå på stedet. Bygningen huser designværksted til undervisning elever, studerende og andre grupper, der dagligt bruger museets undervisnings- og formidlingstilbud. Designværkstedet anvendes også til at holde designworkshops, lærerkurser, familiearrangementer og en designskole for børn og unge. Projektet falder fint ind i området og den omkringliggende bebyggelses karakter, trods det moderne materialevalg. Der er lagt vægt på optimalt indeklima og fine lysforhold samt lav energianvendelse og bæredygtige materialer. Materialet zink er valgt til at beklæde bygningen, fordi det det rummer egenskaber, som gør det til et bæredygtigt byggemateriale. Materialet har en høj genanvendelsesprocent, lavt energiniveau i forbindelse med fremstilling og lang levetid.
Emneord:
Zink | Zinkbeklædninger | Værkstedsbygninger | Museer |Se på Google Maps
