Halvcirkulære former
Cirkulære og halvcirkulære vinduer skiller sammen med segmentgavlen opgangen ud fra bygningskroppen.
Fotograf: Tegnestuen
Download billede
Situationsplan
Konceptet i bebyggelsesplanen er at få etagehusene til at fremstå som 5 større villaer i parklignende omgivelser.
Fotograf: Tegnestuen
Download billede
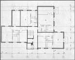
Etageplan
Etageplan med 4 lejligheder organiseret om trappen som møllevinger.
Fotograf: Tegnestuen
Download billede
Beskrivelse:
Hvide villaagtige etageboliger i parkagtige omgivelser præger bebyggelsen.
Husenes særkende er præcise betonelementer kronet af tilbagetrukkne sadeltagspartier.
Lette stålrammer ved altaner kontrasterer de tunge bygningskroppe.
Opgange skiller sig ud fra elementbyggeriet som mørkeblå indslag med cylindrisk tag.
