Murværket er gennembrudt af vinduer, altaner og karnapper med de udkragede hjørnevinduer som særlig karakteristiske for ejendommen.
Den lette facadekarakter signalerer funktionalistisk fornyelse, mens trappeopgangen og de runde vinduer repræsenterer traditionen.
Over to af ejendommens tre opgange optræder runde vinduer af forskellig størrelse, som giver asssociationer til opstigende bobler – ikke uden arkitektonisk vid og humor.
I den første opgang kommer dagslyset ind fra husets bagside gennem et spidsbuet vindue.
Spidsbuet indgangsportal i gule sten i opgang nr. 7 mod Grønningen.
Indgangsportal med fladt buestik og tilhørende udkraget tagudhæng. Hoveddøren består af diagonalstillede dørplanker i forskellig bredde naglet sammen, så de får en rustik karakter.
På opgangen Hammerensgade nr. 8 optræder en dobbelt spidsbueindramning af røde sten.
Der er et element af “sunken katedral” over Lundings bygninger med de runde vinduer og det maritime præg. Noget underforstået, som samtidig er dristigt – og ganske enestående.
Beskrivelse:
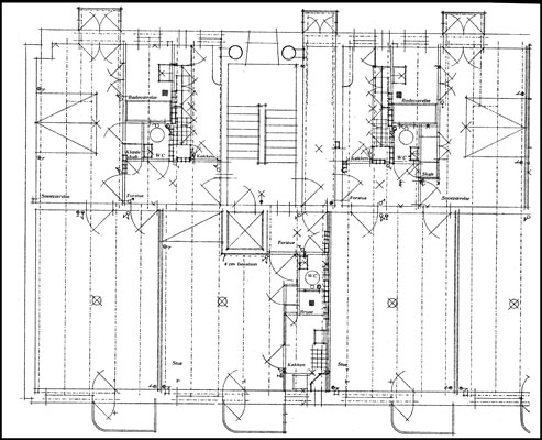
Den ukonventionelle boligejendom på hjørnet af Grønningen og Hammerensgade indeholder 41 lejligheder på sine 6 etager. Facaderne står i rød tegl, mens taget er udført med sortglaserede tagsten.
Det var den sidste af Grønningens ejendomme, som blev bygget, og den blev udstyret med en for datiden eksklusiv vare: dørtelefoner! Et sjovt særkende ved huset er de tre forskellige indgange.
