Beskrivelse:
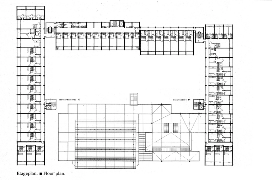
Bryggergården blev bygget for at tilføre Vesterbro en række sociale institutioner og rekreative centre, som det dengang saneringsmodne område savnede. Anlægget indeholder børneinstitutioner, ungdomsklubber, svømmehal, plejehjem, pensionistlejligheder, ungdomspension og familieboliger. Institutionerne er anbragt under de søjlebårne boligfløje mod Vesterfælledvej og Slesvigsgade, ungdomsklub og svømmehal ligger mod Angelgade, og ældreboligerne med fællesfunktioner nederst ligger i fløjen langs Alsgade. Karréen rummer en terrasseret gårdhave opdelt i friarealer ved lave støttemure. Under hele anlægget er der parkeringskælder i to etager. Byggeriets formsprog er brutalistisk, med en materialitet domineret af kraftige jernbetonkonstruktioner samt udfyldningsmurværk i rødt tegl. Komplekset er støttet af Bryggeriet Carlsberg, der oprindelig ejede grunden.
