Ny administrationsbygning til venstre og udstillingsbygning til højre
Fotograf: Rolf Sjögreen
Download billede
Vue over udendørs scene
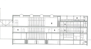
Den gamle del af Brandts Klædefabrik med ombygninger fra `80 erne samt udendørs scene i forgrunden
Fotograf: Rolf Sjögreen
Download billede
Tilbygning med tagterrasse set fra øst
!. salen indeholder kontorer og møderum
Fotograf: Rolf Sjögreen
Download billede
Gangbro
Gangbroen forbinder nyt med gammelt udstillingareal
Fotograf: Rolf Sjögreen
Download billede
Adresse:
Se på Google Maps
Se på Google Maps
