Beskrivelse:
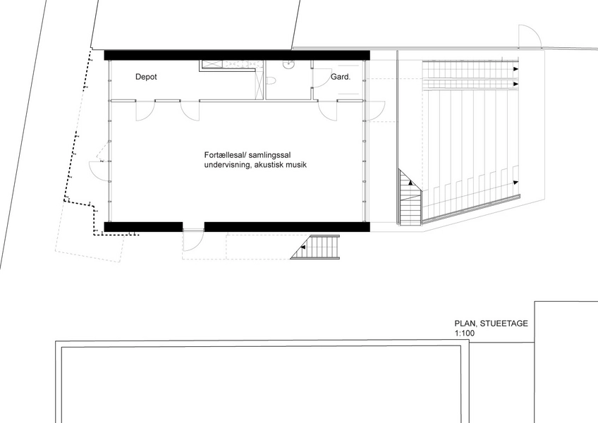
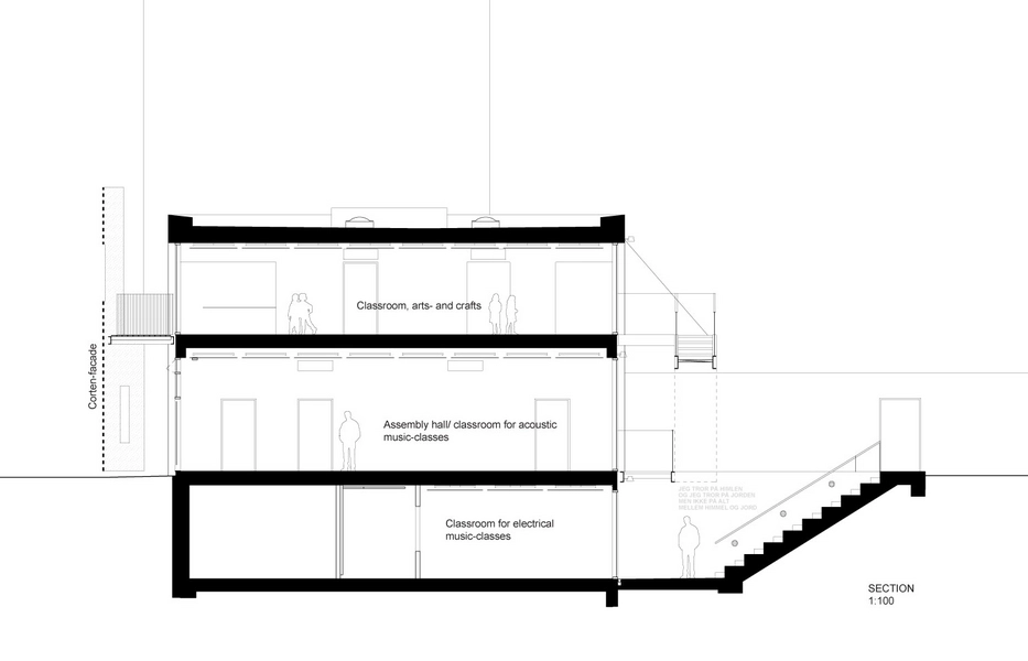
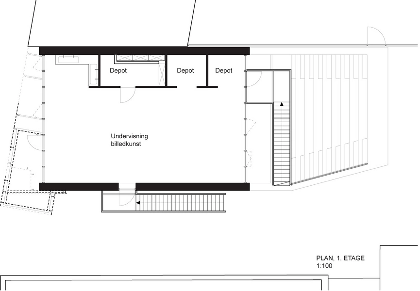
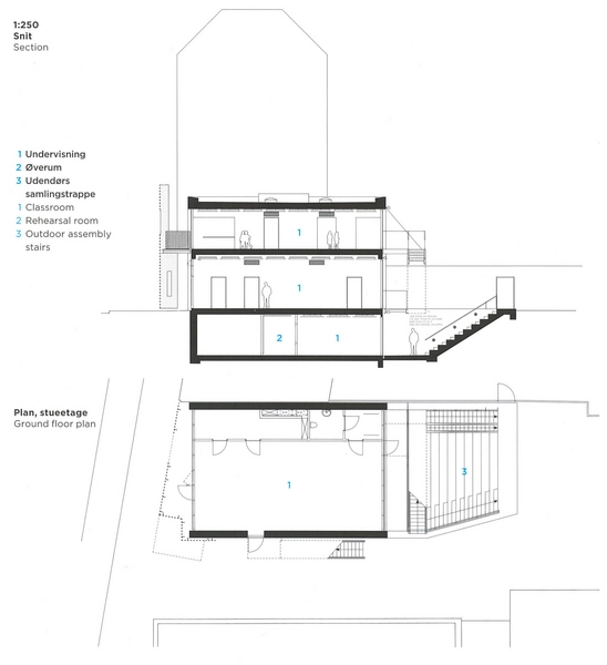
Bordings Friskole i København har fået opført en tilbygning i 3, som huser lokaler til kreative og musiske fag. Tilbygningen er en skulpturel komposition med tre arkitektoniske elementer: aftrykket i terræn, volumen og skærmen. Den nye bygning møder Øster Søgade der hvor byens klassiske karréstruktur møder de lavere rækkehuse i Kartoffelrækkerne. Bygningen er opført i betonelementer med en skalmur, som er bygget op af genbrugssten fra den tidligere portnerbolig, disse sten har stadig inskriptioner fra elever gennem tiden. Den smukke udsigt til søerne og de store kastanjetræer filtreres gennem en perforeret gitterkonstruktion, der fungerer både som solafskærmning og filter. Den tillader udkig til gadesiden, men skærmer mod indkig til børnenes fællesrum. En amfi-trappe leder ned til øvelokalet i kælderetagen. Her er muren udsmykket med et citat af Søren Ulrik Thomsen. Lone Høyer Hansen har stået for den nye udsmykning af de eksisterende bygninger ud mod gaden.
Emneord:
Trapper | Genbrug | Skoler | Teglfacader | Perforerede plader | Metalplader | Metal |Se på Google Maps
