Blindecenter Bredegaard
| Jørn Langvad • Søren D. Schmidt • Algren & Bruun landskabsarkitekter | 1974 - 1975Beskrivelse:
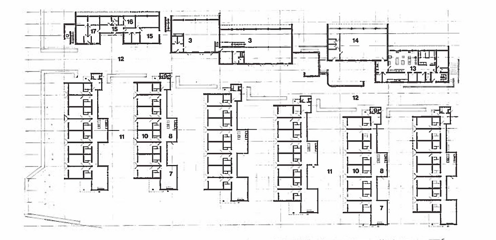
Bredegård Blindehjem i Fredensborg, i dag Blindecenter Bredegaard, fungerer som bolig og arbejdssted for beboerne. Centeret har 40 lejligheder til rådighed, hvor hver lejlighed er på ca. 24 m2 og indeholder entré, toilet, stue/soveværelse og egen udgang til have. Hver bogruppe er i dag på seks lejligheder, men indeholdt ved bebyggelsens opførelse otte lejligheder. Bogrupperne har fælles køkken og opholdsstue. Boliglængerne fremstår som tunge monolitiske volumener i hvidkalket tegl, mens fællesfunktionerne ligger påkoblet som lette trækonstruktioner på østsiden. På grundens nordside ligger kompleksets arbejds- og aktivitetshuse, afgrænset fra boligerne af en forbindelsesvej. Boliglængerne ligger i et frodigt grønt parkrum.
Emneord:
Træbeklædninger | Parker | Aktivitetscentre | Beskyttede boliger | Teglfacader | Handicap | Adresse:
Se på Google Maps
Se på Google Maps
