Overdækningen fører naturligt ind fra parkeringspladsen til hovedindgangen. Indkig til det store fitnesscenter langs glasfacaden.
Afrundet hjørne i støbt beton med åbning ned mod øvrige idrætsanlæg. Bygningen er set fra øst.
Den store overdækning er et markant bygningselement på den lange facade. Den fungerer som en stor vinge som indfanger og beskytter de besøgende fra den trafikerede vej.
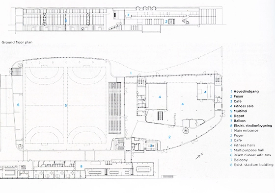
Hovedindgang. De to store haller og svømmehal ligger til højre for indgangen.
Fra hovedingangen føres man ind til receptionen og en stor åben café, der også fungerer som fordelingsrum.
Indgang til fitnesscenter og spindeltrappen fører op til balkon og adgang til de øvrige idrætsrum.
Udsyn til café fra balkon. Dagslysindfaldet fra bygningens bagside styres af lange hvide lameller. Kummer med slyngplanter fra gulv til loft er med til at skabe en vinterhavestemning.
Den ene af to lyse haller med dagslys der strømmer ind fra den store glasfacade. Stålbjælkekonstruktion i tag er fælles for de to haller, der fungere som multihal der kan tages i brug ved store arrangementer.
Kørende og gående trafik er adskilt på en smidig måde.
Se på Google Maps
