Bellahøjhusene
| Harald Petersen • Dan Fink • Karl Larsen • Ole Buhl • Edvard Heiberg • Svenn Eske Kristensen • Frederik Christian Lund • C. Th. Sørensen | 1951 - 1956Beskrivelse:
Planlægningen af højhusbebyggelsen blev afgjort ved en arkitektkonkurrence i 1944 med Tage Nielsen og Mogens Irming som vindere. Forslaget introducerede Le Corbusiers teorier om koncentreret bebyggelse med højhuse for at give mest mulig plads til landskabet. Bebyggelsen var fra starten opdelt i fire forskellige afsnit med forskellige almennyttige boligforeninger som bygherrer og hver deres arkitekter. Koncentreringen af boligerne i højhuse giver store gennemgående friarealer, men man havde ikke forudset udviklingen i behovet for parkeringspladser til de 2.000 beboere. Parkeringskældrene er i dag ikke tilstrækkelige, og derfor parkeres mellem husene. C. Th. Sørensen stod for den gennemarbejdede og ambitiøst anlagte landskabsplan. Midt i højhusbebyggelsen, nord for Degnemosen, blev overskudsjord fra udgravningerne til fundamenter og kældre brugt til anlæggelse af et kunstigt amfiteater med plads til 2.000 mennesker.
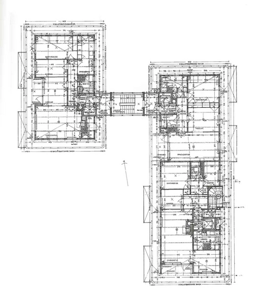
Punkthusene er samlet i en nordlig og en sydlig gruppering på Københavns højeste bakkedrag, og udsigten fra lejlighederne hører til byens bedste. Bebyggelsen rummer i alt 28 højhuse med fra 9 til 13 boligetager. Generelt er de 1.300 boliger i punkthusene relativt små – med penthouselejlighederne på tagetagen som de største. De fleste boligtårnene er koblet sammen to og to af en mellemliggende glastrappe, hvorfra der er adgang til lejlighederne. At der har været forskellige arkitekter på de mange punkthuse, ses i detaljerne, planløsningerne og de forskellige facadebearbejdninger, men på afstand fremstår bebyggelsen homogen. Generelt blev husene, som noget nyt, opført i glideforskalling.
Højhusene gav anledning til stor faglig debat blandt arkitekter, en debat, der resulterede i, at det i en periode blev anset for politisk ukorrekt at opføre højhuse i Danmark.
