Mod Strandgade skiller Arkitekternes Hus sig ud fra gadens kontekst som en kantet, hvid bygningsstok, der svæver på en indgangsetage i glas. De tre kontoretagers vinduer er beskyttet mod solindfald af en udvendig stålramme med horisontale lameller.
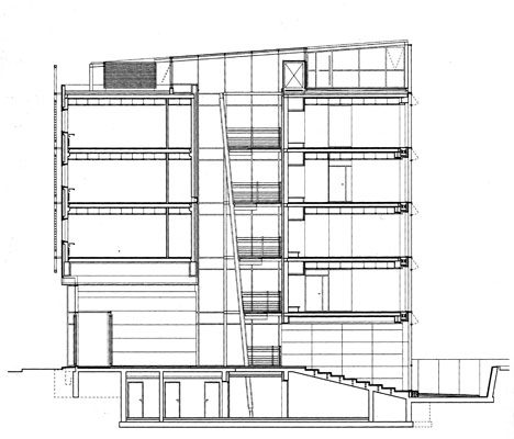
Det mest originale træk ved Arkitekternes Hus er panoptikon-rummet, hvor trapper og gangbroer er oplagt på et skråtstillet rammeværk i stål, der opleves skibsagtigt og dramatisk. Drejedørene nederst til højre i billedet fører ind til mødelokaler.
Til højre i panoptikon-rummet ligger mødelokaler og over disse kontorer udlejet til Udenrigsministeriet. Til venstre ses de hældende stålbæringer af gangbroer og trapper, der fører ind til forenings- og redaktionslokaler.
I gadeniveau med Strandgade ligger Arkitektforeningens mødelokaler (og kantine) som høje lyse lokaler. Ved receptioner kan væggen mod panoptikonrummet åbnes som store, drejelige partier.
Mod nordvest fremstår Arkitekternes hus som en glaskasse bag hvilken lodrette trælameller kan aktiveres som solafskærmning.
Beskrivelse:
Mod nordvest har de 4 kontoretager udsigt over Gammel Dok til Københavns Havn. Bag glasfacaden findes lodrette, drejelige lameller som brugerne individuelt kan stille så evt. solblænding undgås.
