Bygningen er siden blevet overtaget af forsikringsselskabet Almindelig Brand
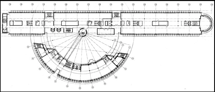
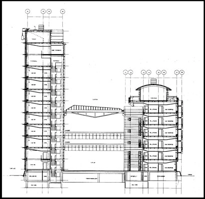
Mod vest dækker en aflang kontorstok langs Midtermolens kaj for firmadomicilets konkavt krumme hovedtårn i 12 etager.
Mod hovedankomstvejene i syd langs midtermolen markerer indgangspartiet sig som et tydeligt tilbageliggende parti i det konvekse glastårn.
På nært hold fremstår firmadomicilets glastårn med en særlig elegance takket være facadens spidsvinklede sideafslutning og facadens vertikale midterdeling.
Ved indsejlingen til Københavns havn markerer Alm.Brand sig med den tvedelte konvekse hovedbygning.
Beskrivelse:
I Frihavnens midtermole har ØK opført sit firmadomicil som en lavere bygning, der servicerer den krumme hovedbygning. Store glasfacader præger dette anlæg der mod 3 verdenshjørner har udsigt over havnebassinet.
