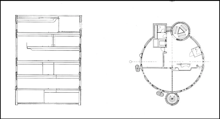
Bortskæring af dele af etagedækkene giver personale og besøgende en mere rumlig oplevelse af tårnhusets vertikalitet og udsigtsmuligheder.
Beskrivelse:
Fem etager højt fagforeningshus formet som en cylinder med også trappetårne i cylindriske teglhylstre. Facaderne er struktureret af mønstermurværk i rødlig og mørkebrun tegl. Den runde husform og de næsten ansigtslignende detaljer omkring vinduespartier som denne næse og to øjne gør nærmest bygningen antropomorfistisk.
De 5 kontoretager i det runde fagforeningshus spænder ikke helt ud til alle facader men har til den ene side en balkon, der lyd- og ventilationsmæssigt binder interiøret sammen. Fra toppen af det 5 etager høje fagforeningshus er der fri udsigt over det omliggende Frederiksberg. Detaljerne omkring udsynsåbninger virker ligesom mønstermurværket særdeles kraftfuldt.
