Beskrivelse:
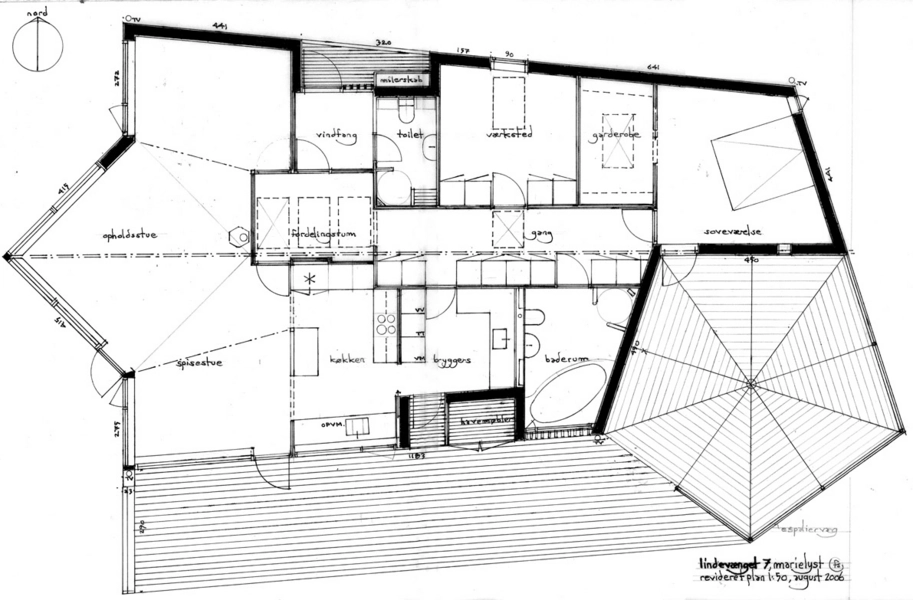
AHORNHUSET - opkaldt efter sin planfigur - og opført som en trækonstruktion med facadebeklædning af brædder med gul træimprægnering. Den gule farve er en reference til et lille gult træhus fra midt-trediverne, der oprindelig lå på grunden i dette Danmarks formentlig største fritidshus-område. Ahornhuset er på 139 kvadratmeter udført og isoleret efter Bygningreglementets krav til helårshuse.
Emneord:
Fritidshuse | Sommerhuse | Træhuse | Enfamiliehuse | Glaspartier | Trækonstruktioner | Vinduespartier | Adresse:
Se på Google Maps
Se på Google Maps
 Links: Flemming Skude website |  
